プロジェクト実行者
ストーリー

ZEN Hostelは長野県にある地獄谷温泉に一番近い温泉街「湯田中・渋温泉」エリアに位置する、英会話を学べるゲストハウスです。アメリカ人の先生から楽しく英会話を学ぶ事が出来ます。
プレオープンは2016年8月下旬、本格オープンは2016年9月下旬を予定しております。
突然ですが、「Snow Monkey」って聞いた事ありますか?
降りしきる雪の中、暖かそうに温泉に浸かっている猿の写真や動画を見た事がある人もいると思います。

長野県にある山ノ内町という人口わずか12000人の小さな町に、「Snow Monkey Park」として知られている地獄谷温泉があります。
実はその地獄谷温泉に世界中から観光客が集まっているのです。外国人に人気の日本の観光スポットランキング2015では金閣寺や浅草などを抑えて堂々の6位に入っています。
特に冬場は街を歩いている8割が外国人なので、外国にいる感覚になります。都心部から2時間程で留学できる当ゲストハウスで楽しく英会話を学んでみませんか?

ZEN Hostelは、地獄谷温泉に一番近い温泉街「湯田中・渋温泉」エリアに位置します。長野駅から長野電鉄に乗って40分、終点の湯田中駅から徒歩4分です。東京からも2時間ちょっとで来られる場所です。
元々は明治31年に開業された老舗旅館「わしの湯」ですが、オーナーがご高齢のために2011年惜しまれながら閉館されました。

そのノスタルジックな佇まいの歴史的建造物に新たな命を吹き込み、ZEN Hostelというゲストハウスとしてもう一度明かりを灯すことにしました。
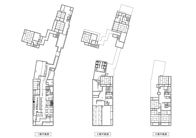
建物は木造3階建て、延べ床面積は900㎡と、写真で見るよりもかなり大きな建物です。

1Fにはカフェ&バーエリア、茶道室、サロンスペース、個室の客室があります。2Fはドミトリー、英会話教室、個室の客室、シャワーブースがあります。3Fは個室の客室のみです。

そもそもなんでゲストハウスに英会話スクールがあるの?と思われる方も多くいらっしゃると思います。
それは、ZEN Hostelが英語を勉強するに最適な環境を提供できるからです。
理想を言えば、英語を習得するためには、海外留学など英語圏に飛び込むことが一番の方法だと思います。
しかし、現実問題として、仕事をしている人は簡単に海外留学なんてできないのではないでしょうか?
そんなジレンマを解消できる理由がZEN Hostelにはあります。

パスポートもいらないし、飛行機にも乗らないで首都圏から2時間ちょっとで行ける利便性。時間が空いた週末にちょっと週末留学してみませんか?
温泉に浸かったり、大自然を満喫したりして心身ともにリフレッシュすれば、英語の勉強もより一層はかどるでしょう。

(当ゲストハウスが提携している有形文化財の温泉)
英会話の講師ってどんな人?
ZEN Hostelで英会話を担当してくれるのはアメリカ人のMaya先生です。先生は2年前に来日してから、日本人に英会話を教えています。
元々アメリカでは心理学を勉強されていたので、人によってどんな教え方をすれば効率的か、どうすればモチベーションを維持しながら勉強できるかを熟知しているので、本当に楽しく英語を学ぶ事ができます。

(Maya先生)
英会話レッスンについて
◆レッスンの仕組み
・レッスン時間:50分/クラス
・人数:4~6名(プライベートレッスンの場合は1人)
*事前に英語力の診断をしてから受講するクラスを決めさせて頂きます。プライベートレッスンの場合は、それぞれ勉強したい内容にあわせて進めさせて頂きます。
◆予約について
ご宿泊と同様、事前予約が必要になります。予約に関する詳細は、プロジェクト終了後、実行者からご連絡致します。
◆料金について
グループ:1クラス(50分)2,500円→2,000円(MAKUAKE支援者限定料金)
プライベート:1クラス(50分)5,000円→4,000円(MAKUAKE支援者限定料金)
今後英会話レッスンの内容が変更になる可能性があります。レッスンの内容に関してはご相談承ります。


ゲストハウスは新たな出会いの連続です。しかし、そんなに頻繁に長野まで来れる人は稀でしょう。
そこで、今回ご支援頂ける方限定の「禪祭」という会合を東京と長野にて定期的に開催する事にしました。皆さんと楽しくお食事をしながら情報交換ができればと思います。
学校、職場、年齢、出身地など、今まで全く繋がりがなかった人々が「ZEN Hostelのご支援」というきっかけで集う祭です。
記念すべき第1回禪祭の日程は追って連絡しますが、東京で開催予定です。東京近郊にお住まいの方は是非ご参加ください。

2016年5月のゴールデンウィーク明けに部分解体工事を始めてから約2カ月。2016年7月5日現在、改修工事も終盤に差し掛かってきました。
頼もしい仲間やプロの職人さんに支えられてなんとかここまでやってきました。

内装工事やペンキ塗りは大体友人や家族と一緒にやりました。これから家具類も作り始めます。

1階のメインはカフェ&バーです。大まかなところは出来てきましたが、細かいところはまだ時間がかかりそうです。
池は5年分のヘドロが想像以上に溜まっていました。シャベルで取り出すのを断念して、バキュームカーを手配しました。体力的にも精神的にも嗅覚的にも一番過酷な作業でした(涙)

英会話教室の壁紙を一生懸命貼っています。もう少しで終わりそうです。ドミトリーはこれから手をつけます。
トイレも7月15日頃には取り付けられる予定なので、それまでに床を仕上げないといけないんです。
そんなこんなで、楽しみながら改修工事を行っています。早く工事が終わって皆様にお披露目出来る日が来る事を夢見ながら明日も頑張ります!

目標金額:¥1,080,000
厨房設備:¥280,000
水周り設備:¥400,000
内装修繕費:¥200,000
手数料:¥200,000
当ゲストハウスは、英会話を学べるゲストハウスですが、単に教室で英語を勉強するだけでなく、カフェ&バーエリアで実際に英語で注文したり、外国人と触れ合ったりしながら、体で英語を覚えていく事を心がけています。

そこで、今回のご支援金はカフェスペースの改築費に回したいと思っています。雰囲気、居心地の良い場所を提供できるように、しっかりとした空間を作り上げていきたいと思います。


森田昭仁
東京都大田区出身。エンターテインメント系の企業にて世界中を飛び回り、国際間のビジネスを学ぶ。2007年にアメリカのガジェット系商材を見つけ、総代理店契約を締結し、日本に法人を設立。2012年、インバウンド向けのマーケティングや海外企業の日本進出のサポートをする会社をアメリカで立ち上げる。主にアメリカ、カナダ、メキシコで旅行者を日本へ誘致するためのイベントなどを行う。長野県の湯田中温泉エリアにゲストハウスをオープンするために、2016年2月に日本へ帰国、同年3月にゲストハウス運営会社である株式会社ZENを設立。

「世界から山ノ内へ、山ノ内から世界へ」
現在、世界各国から数多くの外国人が山ノ内町にやってきます。「世界から山ノ内へ」は既に成し遂げられています。
今度は「山ノ内町から世界へ」羽ばたく日本人を増やしていきたいと、大げさな話に聞こえるかもしれませんが、我々は本気で思っています。
英会話や異文化交流体験を通じて、少しでも海外に興味を持って頂き、世界に羽ばたいていける日本人を増やしたい!
そして世界に羽ばたいていった日本人が、日本の素晴らしさを世界中の人に伝える事によって、それが観光立国日本の基盤になるでしょう。
観光産業が発展すればそれが地域活性化に繋がり、都心部だけでなく、地方がもっと元気になります!
我々はそんな元気な日本を目指して、出来る事を精一杯頑張っていきます!


◆OPEN時期
プレオープン: 8月下旬
グランドオープン: 9月下旬
◆宿泊料金
ドミトリー:¥3,000/人
2人部屋:¥6,000~/部屋(季節によって料金が変動になります)
3人部屋:¥7,200~/部屋(季節によって料金が変動になります)
4人部屋:¥9,000~/部屋(季節によって料金が変動になります)
スイートルーム(最大6名様):¥24,000~/部屋(季節によって料金が変動になります)
◆共用スペース
シャワーブース:4ブース(個別脱衣所鍵付き)
トイレ:1Fに各フロアに1ヵ所、スイートルーム内に1ヵ所
ランドリー:シャワーブースエリアに2ヶ所
サロン:プロジェクター完備
◆カフェ&バー
モーニング:7:30~10:00
カフェ:10:00~11:30
ランチ:11:30~14:00
カフェ:14:00~17:00
バー(ディナー):17:00~23:00 (LO 22:00)

最後までお読み頂きましてありがとうございました。
ZEN Hostelは山ノ内の地元の方、外国人旅行者、そしてご支援下さる皆様があってこそ成り立つ場所です。
旅の出会いは一期一会と言いますが、ZEN Hostelにはきっと素晴らし出会いが待っているでしょう。
お時間のある際には是非一度ZEN Hostelに足を運んで頂ければ、こんなに嬉しい事はありません。
近いうちに、皆様にお会いできるのを心待ちにしております。
サポーターからの応援コメント
文章のトップに戻る
応援購入する
このプロジェクトはAll in型です。目標金額の達成に関わらず、プロジェクト終了日の2016年09月16日までに支払いを完了した時点で購入が成立します。
名前入りミニちょうちん
3,500円(税込)
◆支援者名前入りミニちょうちんをゲストハウス入り口に設置
*提灯に入れるお名前は最大で5文字になります。
ゲストハウスの入口を入り、受付カウンターの真横にあなたの名前入りちょうちんが綺麗に飾られます。
当ゲストハウスを一緒に作った一員として、暖かい光を灯し続けて頂きます。
【限定50名様】ZEN Hostel特製生コーヒー豆200ml
5,000円(税込)
6,000円相当(1,000円お得!)
◆ZEN Hostel特製生コーヒー豆200ml
*酸化していない生豆を焙煎したその日に焙煎工場から直接発送してお届けします。
◆支援者名前入りミニちょうちんをゲストハウス入り口に設置
*提灯に入れるお名前は最大で5文字になります。
【限定30名様】農林水産大臣賞受賞りんごジュース(1L入り)3本セット
6,000円(税込)
7,500円相当(1,500円お得!)
◆農林水産大臣賞を受賞した山ノ内町産りんごジュース(1L入り)の3本セット
*雄大な自然を誇る志賀高原からの雪解け水の恩恵を受ける麓に広がるりんご園でこだわり抜かれた高い技術で高品質生産された濃厚な旨味、山ノ内の恵まれた環境の下で育ったりんごで作られています。
◆支援者名前入りミニちょうちんをゲストハウス入り口に設置
*提灯に入れるお名前は最大で5文字になります。
【MAKUAKE限定】1泊2日宿泊券&有形文化財温泉チケット(1名様分)
8,000円(税込)
10,000円相当(2,000円お得!)
◆宿泊券×1泊分(ドミトリー)
*事前予約が必要となります。
*宿泊券のご利用は、2017年9月末までとさせて頂きます。
*宿泊予約の詳細はプロジェクト終了後、実行者からご連絡致します。
◆温泉入浴券
*当ゲストハウスと提携している旅館にある有形文化財の温泉に入浴して頂けます。
◆夕食・朝食チケット(1名様分)
◆支援者名前入りミニちょうちんをゲストハウス入り口に設置
*提灯に入れるお名前は最大で5文字になります。
【MAKUAKE限定】ZEN Hostelクーポン券 ブロンズ
10,000円(税込)
◆ZEN Hostelが提供する全てのサービスに使えるクーポン券12,000円分
◆支援者名前入りミニちょうちんをゲストハウス入り口に設置
*提灯に入れるお名前は最大で5文字になります。
【クーポン券が使えるサービス内容】
1. 宿泊(3,000円~)
2. 英会話レッスン(2,000円~)
3. 提携先温泉入浴(1,100円)
4. 飲食(350円~)
5. 貸し切りタクシー観光(16,500円/台~)*最大4名まで乗車可
【先着30名様】ZEN Hostel1泊2日券&英会話2時間レッスン
12,000円(税込)
14,500円相当(2,500円お得!)
◆宿泊券×1泊分(ドミトリー)
*事前予約が必要となります。
*宿泊券のご利用は、2017年9月末までとさせて頂きます。
*宿泊予約の詳細はプロジェクト終了後、実行者からご連絡致します。
◆アメリカ人講師による2時間のプライベート英会話レッスン
*事前予約が必要となります。
*2017年9月末までのご利用となります。
*クラス予約の詳細はプロジェクト終了後、実行者からご連絡致します。
◆支援者名前入りミニちょうちんをゲストハウス入り口に設置
*提灯に入れるお名前は最大で5文字になります。
*こちらのコースには夕食・朝食はつきません。
【MAKUAKE限定】ZEN Hostelクーポン券 シルバー
20,000円(税込)
◆ZEN Hostelが提供する全てのサービスに使えるクーポン券24,000円分
◆支援者名前入りミニちょうちんをゲストハウス入り口に設置
*提灯に入れるお名前は最大で5文字になります。
【クーポン券が使えるサービス内容】
1. 宿泊(3,000円~)
2. 英会話レッスン(2,000円~)
3. 提携先温泉入浴(1,100円)
4. 飲食(350円~)
5. 貸し切りタクシー観光(16,500円/台~)*最大4名まで乗車可
【MAKUAKE限定】ZEN Hostelクーポン券 ゴールド
30,000円(税込)
◆ZEN Hostelが提供する全てのサービスに使えるクーポン券36,000円分
◆支援者名前入りミニちょうちんをゲストハウス入り口に設置
*提灯に入れるお名前は最大で5文字になります。
【クーポン券が使えるサービス内容】
1. 宿泊(3,000円~)
2. 英会話レッスン(2,000円~)
3. 提携先温泉入浴(1,100円)
4. 飲食(350円~)
5. 貸し切りタクシー観光(16,500円/台~)*最大4名まで乗車可
【3社限定】2泊3日グローバル企業研修スペシャル
300,000円(税込)
*下記全てのリターンを最大6名様でご利用頂けます。
*こちらのコースは3社限定となります。上記金額は全員分です。
◆アメリカ人講師による10時間のビジネス英会話レッスン
*事前予約が必要となります。
*2017年9月末までのご利用となります。
*クラス予約の詳細はプロジェクト終了後、実行者からご連絡致します。
◆当ゲストハウス代表とバーにて「グローバルビジネス」に関する座談会
*海外で日本企業が成功するために知っておくべき事
*英語勉強方法など
◆宿泊券×2泊分(スイートルーム)
*事前予約が必要となります。
*宿泊券のご利用は、2017年2月末までとさせて頂きます。
*宿泊予約の詳細はプロジェクト終了後、実行者からご連絡致します。
◆夕食2回、朝食2回、昼食2回付き
◆温泉入浴券
*当ゲストハウスと提携している旅館にある有形文化財の温泉に入浴して頂きます。
◆支援者名前入りミニちょうちんをゲストハウス入り口に設置
*提灯に入れるお名前は最大で5文字になります。
*こちらのお名前は法人名、代表者名をお選び頂けます。
「Makuake(マクアケ)」は、実行者の想いを応援購入によって実現するアタラシイものやサービスのプラットフォームです。このページは、 地域活性化カテゴリの 「長野へ週末に留学!日本初!?英会話を学べるゲストハウス《ZEN Hostel》」プロジェクト詳細ページです。